Mill Hill Garden

A blank canvas allowed us to design a unique garden that maximised the space and views out over the London skyline.

A nod to modernist California informed the design and layout of this contemporary garden in Mill Hill.
A nod to modernist California informed the design and layout of this contemporary garden in Mill Hill.
Stage 1

The Brief

The clients approached us during the planning process for a house refurbishment and extension. Key to them was to ensure we made full use of the new expansive views out, whilst also accommodating intimate spots for sitting and exploring the garden. The front garden also required careful consideration to allow for off street parking, bin storage, but ensuring a gentle and attractive path to access the house.

Stage 2

Design and Build

The architects had designed a contemporary extension with a nod to Californian modernism. Our design intention was to embrace these architectural lines within the footprint of the garden structure and layout, whilst ensuring a natural landscape to surround and embrace the hard landscaping.

A pergola creates an intimate seating area with hanging pod chairs. framing the view back to the house.
A pergola creates an intimate seating area with hanging pod chairs. framing the view back to the house.
The new sliding glass doors allow for an inviting view of the garden, with an intimate covered seating spot, that allows the planing to embrace the house.
The new sliding glass doors allow for an inviting view of the garden, with an intimate covered seating spot, that allows the planing to embrace the house.
Stage 3

Finished Project

There were several challenges along the way ; such as ensuring the safe eradication of Japanese knotweed, dealing with level changes between boundaries and planning permissions. The clients and their young family have fully embraced the garden, utilising each area, and ensure it is well maintained themselves and with the services of a great gardener.

Select an image to enlarge and view more information

A seating spot under a pergola allows for interchangeable hanging pod chairs or play equipment for the clients children, whilst providing respite from the sun drenched patio.
The design layout of the garden followed the architectural lines of the modernist extension, using poured concrete and accents of corten steel.
It was important to surround the boundaries in evergreen hedging to provide privacy and a green backdrop, with deep herbaceous planting borders.
The rear seating area is surrounded by Betula doorenbos trees to create dappled shade and a playful view back to the modernist house extension.
Silver Birch trees envelope the rear pergola to create a seating spot in dappled, shade .
Evergreen jasmine is woven around the vertical posts of the powder-coated steel pergola.
In the front garden, tantalising glimpses through the glass doors, entice you down the staggered garden path.
Off street parking in this Mill Hill front garden, is carefully balanced with planting and textural gravel to ensure the cars don’t dominate the frontage.
Tall Calamagrostis Karl Foerster provides a soft screen and barrier to hide the cars front the front window and path access.
Rhythm and repetition in the carefully balanced planting of Hakonechloa and Pittosporum nanum, provide a staggered and attractive access path to the front door.
The planting is designed to be low maintenance and predominantly green and white, with varying textures and foliage structure to provide year round interest.
A stark reminder of the rather brutal aspect of the garden before landscaping work commences in Mill Hill.
The uncompromising blank canvas that we were presented with before design and landscaping began.
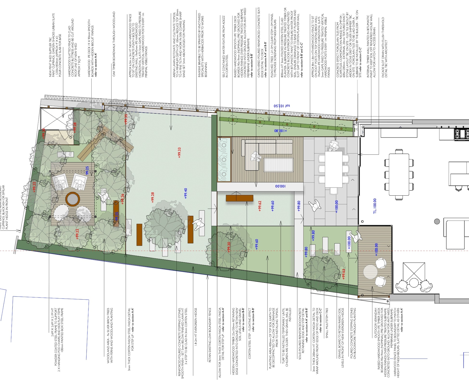
Our initial layout plan of the garden, exploring the connection between the architecture and landscape.
This section elevation of one of the boundaries, shows the change in levels and boundary restrictions due to elevated land on the neighbours side.
×
1 / 15
2 / 15
3 / 15
4 / 15
5 / 15
6 / 15
7 / 15
8 / 15
9 / 15
10 / 15
11 / 15
12 / 15
13 / 15
14 / 15
15 / 15

Photos by Marianne Majerus